An exceptional opportunity to acquire a well-located 340 m² plot in the sought-after Avenida Andasol, Marbella. Just 2 minutes walking to the beach and close to all amenities, this plot offers the perfect blend of convenience and lifestyle.
✅ Project Plan Ready to Start – Save time and hassle with a fully prepared project, allowing you to begin construction immediately.
✅ Investment Opportunity – Ideal for developers looking for a high-potential return in one of Marbella’s most desirable areas.
✅ Build Your Dream Home – Whether you're planning a luxurious modern villa or a charming Mediterranean-style residence, this plot gives you the flexibility to create your perfect living space.
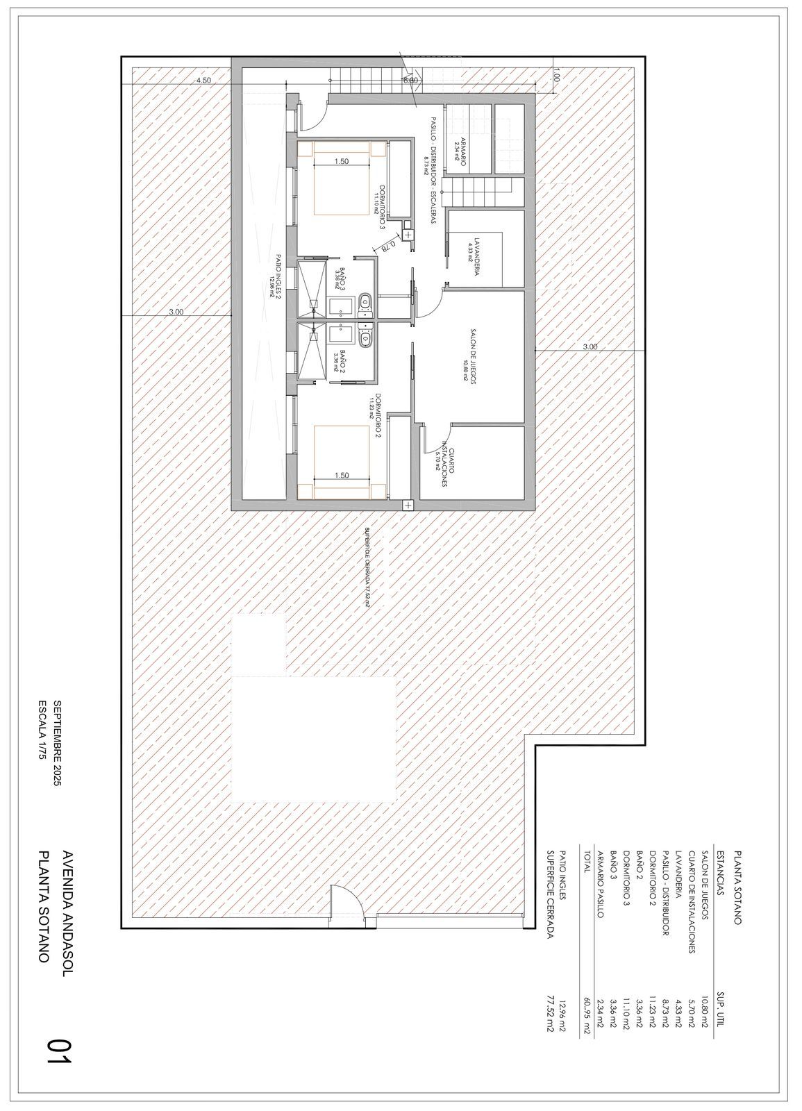
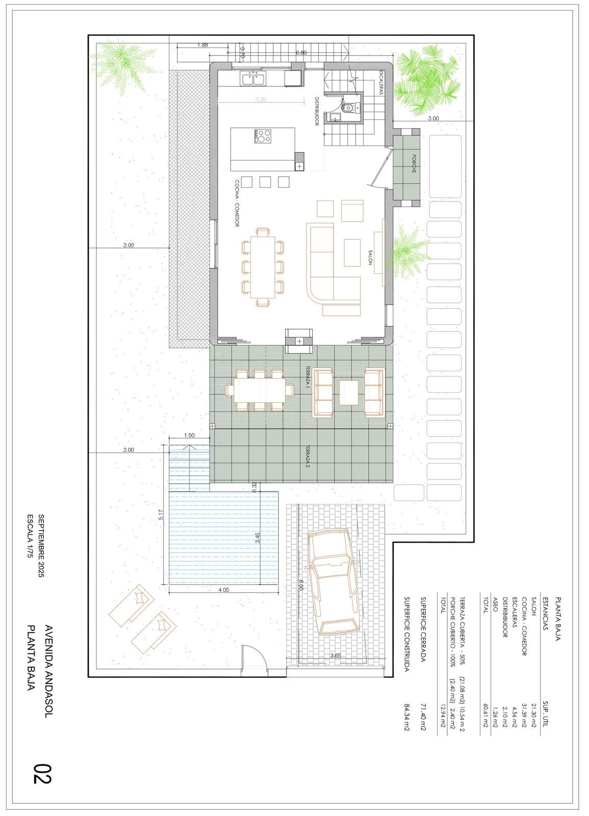
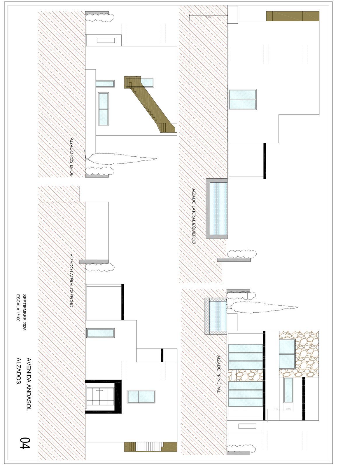
The construction cost are around the 750.000 for this amazing villa!
Location Highlights:
Walking distance to the beach
Close to golf courses, restaurants, and shops
Easy access to Marbella center and Puerto Banús
Don't miss out on this rare opportunity. Whether you're an investor or looking to build your forever home, this plot offers incredible value and potential.

























