Off-Plan Modern Golf Villa – El Campanario
Seize the chance to own a brand-new frontline golf villa with direct views over El Campanario’s fairways. This off-plan contemporary residence combines minimalist architecture with warm natural details and boho-tropical interiors, designed for effortless Mediterranean living.
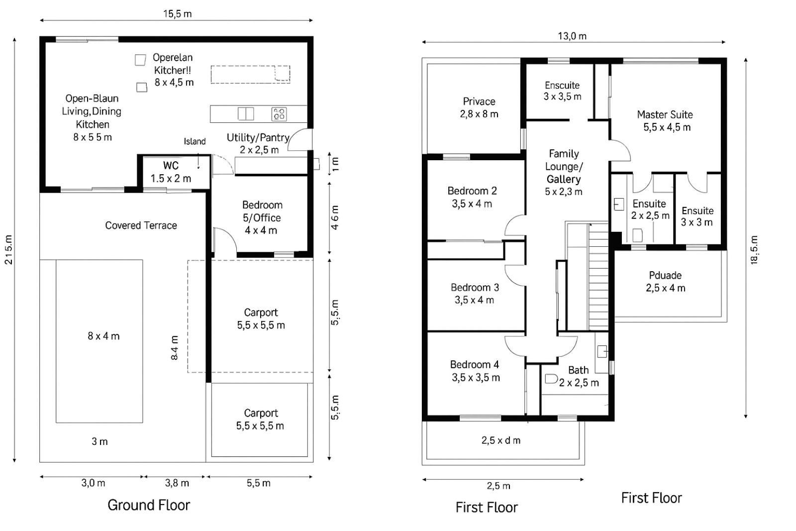
Enjoy approx. 471 m² plot / 280–320 m² built, featuring:
– 4–5 bedrooms, all ensuite (master with private terrace)
– Spacious open-plan living & dining (8×6 m) with floor-to-ceiling glass
– Designer kitchen with island & outdoor BBQ/dining connection
– Modern flat-roof design, glass balustrades, stone & wood accents
An exclusive opportunity to personalize your future home before construction – blending modern design, comfort, and golf-front luxury.





















