Bright 2-Bedroom Apartment in Central Marbella
Fantastic 100 m² south-facing apartment in a prestigious building on Avenida Ricardo Soriano. Very bright, spacious, and offering excellent potential.
Key Features
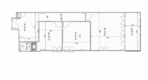
• 2 exterior bedrooms with balconies
• 1 full bathroom
• Large living room with access to an 8 m² terrace
• Porcelain flooring, Climalit double-glazed windows
• Wooden interior carpentry
• Open south-facing views
• Currently registered as an office, with proven precedent of units already converted to residential in the building
Location Highlights
Located in the heart of Marbella, surrounded by:
Shops • Restaurants • Banks • Schools • Public Transport
Use Options
Ideal as:
• A bright central home
• A professional office or studio
• An investment property with high rental demand
• A second residence on the Costa del Sol
Change of Use: Office to Residential
The property is currently legally designated as an office. Several units in this same building have already completed the change of use, confirming feasibility.
Process:
• The property can be purchased as it is (office use).
• After completion, the new owner can immediately submit a change-of-use application to the Ayuntamiento.
• A technical project (architect) is required to support the request.
• Once approved, renovation works can begin.
Estimated Costs for Conversion and Renovation
1. Administrative + Technical Costs
• Architect project for change of use: approx. 1,200–1,500 €
• Change-of-use application + municipal fees: approx. 600–800 €
• Building licence / permits for renovation: approx. 400–700 €
Total estimated administrative + licence costs: approx. 2,200–3,000 €
2. Construction Costs (conversion to residential)
Two renovation options depending on final layout:
Option A — Full renovation (2 bathrooms + kitchen)
• Construction and installation: approx. 30,000 €
• Total incl. permits and paperwork: approx. 33,000 €
Option B — Basic renovation (1 bathroom + kitchen)
• Approx. 18,000 € (construction only)
• Additional licences and paperwork: approx. 2,000–3,000 €
• Estimated total: approx. 20,000–21,000 €
Note: Final costs depend on chosen materials, layout modifications, and technical requirements.
Optional Add-Ons
If adding one parking space and one storage room, the total price becomes 420,000 €.























